Десять лет назад напротив Брестской крепости планировалось построить заметный поселок малоэтажных домов оригинальной наружности: нестандартный проект, красный кирпич, лианы растений. Однако мощностей «Поли Сервис» хватило лишь на один такой дом. Жилой комплекс «Брестская крепость» сдали в 2014 году. С тех пор новых объектов на территории так и не выросло, а квартиры, арестованные у застройщика за долги, прямо сейчас продают с аукциона. Организатор торгов — «БелЮрОбеспечение».
Дом находится по адресу: Зубачева, 3а. На аукцион здесь выставили четыре большие квартиры, причина — долги. В данный момент на имущество застройщика наложен арест судебного исполнителя и департамента финансовых расследований КГК РБ.





Квартиры большие — от 90 до 300 квадратных метров, все помещения продаются без отделки, но с межкомнатными перегородками и разведенными коммуникациями. Самый дешевый лот торгов — трехкомнатная квартира площадью 90 квадратных метров на 6-м этаже 9-этажки. Помимо спален в помещении есть раздельный санузел, кухня, балкон и лоджия. Стартовая цена трешки — 115 200 рублей ($36 074 по курсу за квартиру, или $400 за «квадрат»).

Площадь еще одной арестованной трешки — 91 квадратный метр. Она находится на 5-м этаже. Стартовая цена лота — 118 тысяч рублей ($36 951 по курсу за квартиру, или $406 за «квадрат).


Торги за большую четырехкомнатную квартиру площадью 108,8 квадратного метра начнутся уже со 139 600 рублей, или $43 715 в эквиваленте. Находится помещение на втором этаже дома.


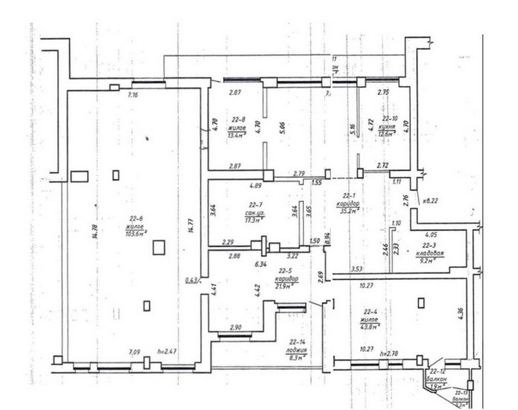
На десерт — пентхаус более 300 «квадратов» с панорамным окном на всю стену. Квартира расположена на седьмом этаже и состоит из четырех жилых комнат, кухни, двух коридоров, кладовой, двух санузлов, трех балконов и лоджии. Начальная стоимость лота — 398 400 рублей, или $124 757 по курсу.



Аукцион состоится 12 апреля на электронной площадке «БелЮрОбеспечение». Заявления на участие принимаются до 11 апреля.
Однако по нужному адресу мы всего этого многообразия не обнаружили. В 2014 году здесь ввели только один дом, дальше стройка не двинулась.